
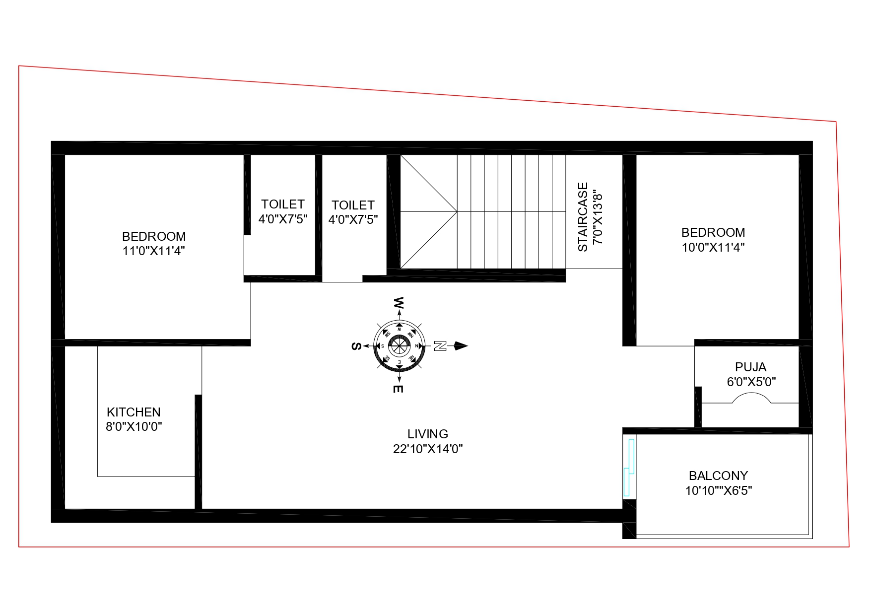
At RJ Latest Housing Design, our Floor Plan Design service provides a clear, well-planned layout of your home with accurate measurements, perfect space usage, and a modern design approach. We help you visualize the complete structure before construction begins.
We design each room with proper size, flow and purpose to ensure comfortable living.
Every space — living room, bedrooms, kitchen, dining and utilities — is arranged thoughtfully.
All floor plans come with proper scaling and dimensions for hassle-free construction.